流態回填土攪拌站-定制各類攪拌站設備、砂漿生產線
1.系統生產實現一鍵啟停,具備自動和手動兩種操作方式,啟動、運行、停機平穩并安全可靠,各設備具有過載保護。
2.所有轉動部位設置防護罩,各檢修平臺設置欄桿,避免存在安全隱患。
3.系統所用稱重傳感器精度等級不低于C3級。
4.骨料配料系統每種骨料單獨計量,計量方式采用高精度電子秤,連續計量的計量精度±2%。

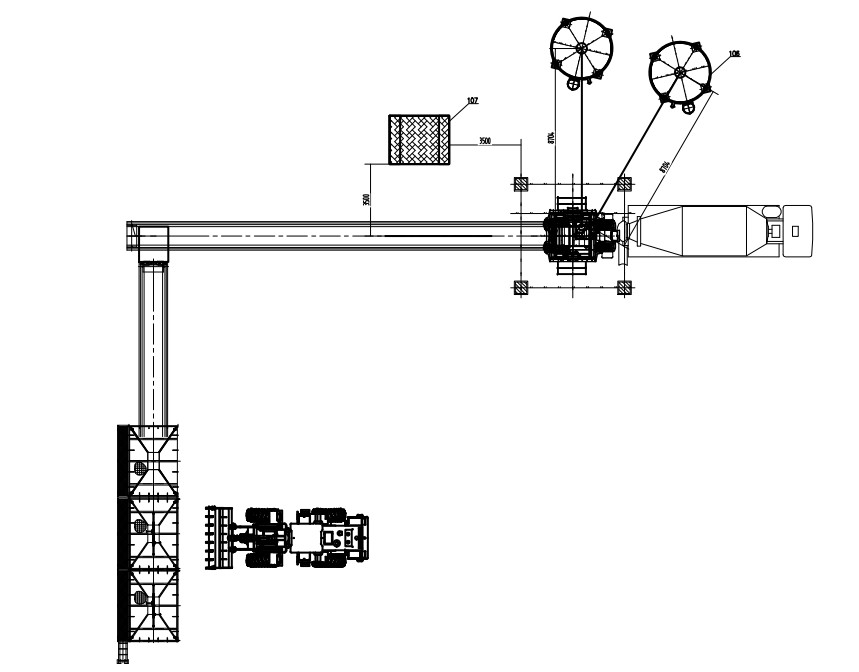
5.皮帶輸送機與攪拌機主軸同向布置,并保證落料點在攪拌機兩主軸中間。
6.粉倉設置倉頂除塵器,保證無明顯粉塵外溢,錐段設置氣動破拱裝置保證供料順暢。
7.供水系統設置流量計,實現對供水流量檢測和計量,通過調整供水重量調節每盤注水量。
8.控制系統能夠實現兩種骨料和兩種粉料配料控制、系統供水控制、攪拌機控制等功能,滿足一鍵啟動生產控制。
9.所有設備都具有在控制柜上手動操作功能、電腦上單機操作和自動運行操作功能。

山東冠成機械,生產混凝土攪拌站,濕拌砂漿設備,干粉砂漿設備,固廢處理設備,預拌砂漿設備,特種砂漿設備,干混砂漿設備,石膏砂漿設備,膩子粉設備,螺旋輸送設備,攪拌站附件等,非標設計制造,隨時歡迎社會各界朋友蒞臨我廠參觀指導,共同發展,共創美好未來!
電話:17661205858
流態回填土攪拌站-定制各類攪拌站設備、砂漿生產線
| 上一條:疫情防控持續向好,防控政策更加優化完善,山東冠成誠邀新老朋友蒞臨公司參觀考察混凝土攪拌站設備、干粉砂漿設備 | 下一條:混凝土攪拌站的操作流程 | 模擬演示 |

咨詢熱線:
